Wohnen


Die Wohnungen

Allen Wohnungen ist gemein

  • schwellenfreier Zugang zu allen Wohnungen und dem Keller durch bequeme Aufzugsanlage
  • eigenes Kellerabteil
  • Extra Abstellfläche im Keller für Kinderwagen und Rollatoren
  • Extra Waschkeller für Waschmaschine & Trockner
  • elektrische Türöffner mit Videogegensprechanlage
  • Die Beheizung der Wohnungen erfolgt über eine effiziente Luft-Wärmepumpe
  • Photovoltaik-Anlage zur Heizungsunterstützung, für den Allgemeinstrom und für günstigen Mieterstrom
  • komplett eingerichtetes Tageslicht-Bad mit Unterschrank, Spiegel, Spiegelleuchte und ebenerdiger Dusche mit Glas-Trennwand
  • helle Räume durch bodentiefe Fenster
  • Fenster sind 3-fach verglast für optimale Energie-Effzienz und höchsten Schallschutz
  • moderne und robuste Bodenbeläge, die zu vielen Einrichtungsstylen passen
  • großzügige Balkone mit Edelstahlgeländern
  • lichtdurchflutetes Treppenhaus
  • Ein Stellplatz auf dem Grundstück kann zusätzlich angemietet werden.
  • Lademöglichkeit für Elektroautos
  • Die gemeinschaftliche Gartennutzung ist selbstverständlich. Ein Mährobotor übernimmt die Rasenpflege. Beete können auf Wunsch mitgestaltet werden.

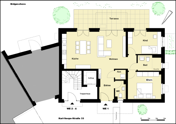
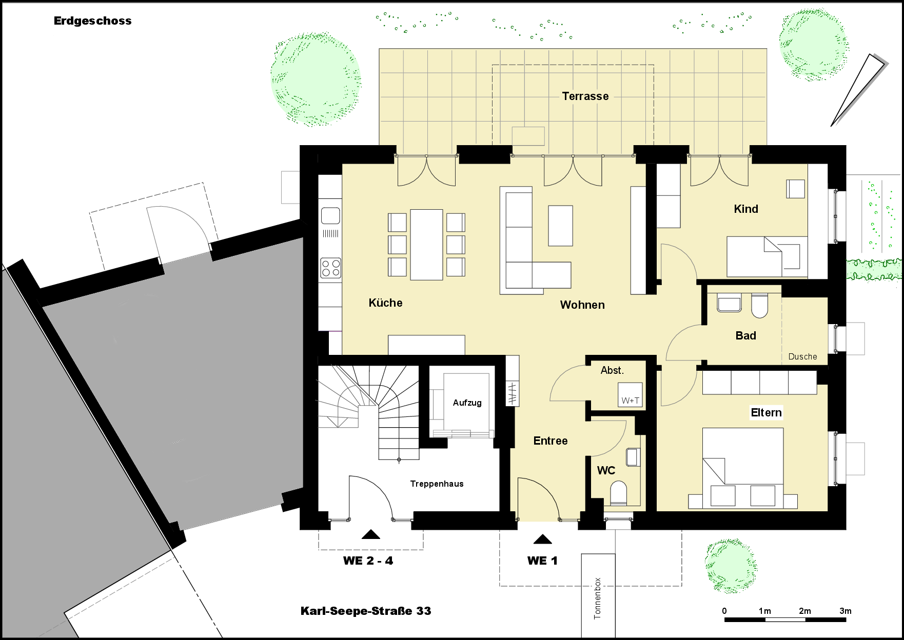
Erdgeschoss, eine Wohnung mit Terasse. Mitten in der Stadt und trotzdem ruhig.

  • Grundriss

    • Entree
    • WC
    • Abstellraum
    • Küche und Wohnen
    • Kind
    • Bad
    • Schlafzimmer
    • Terrasse
    • Abstellraum im Keller
    • Gesamt 101.50 m2
  • Waschmaschine kann, trotz Abstellraum mit vorhandenen Anschlüssen, bei Bedarf auch im vorgesehenem Waschkeller untergebracht werden.

eg.png

Vermietet

  • Grundriss
    • Wohnküche
    • Bad
    • Empore
    • WC Empore
    • Abstellraum im Keller
    • Balkon
    • Gesamt 51 m2
1oglinks.png

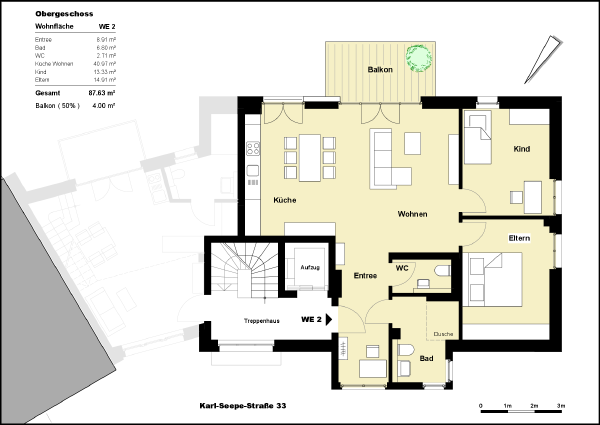
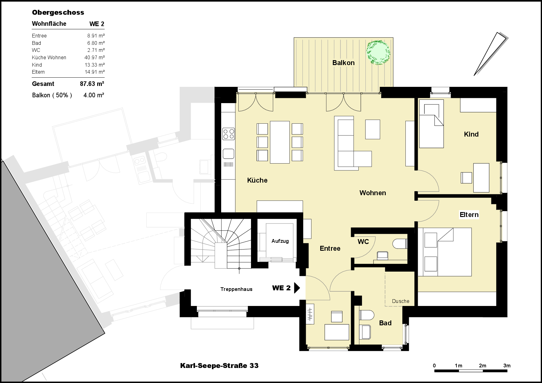
1. OG Rechts, helle 3 Zimmer Wohnung mit großem Balkon und Gartennutzung

Vermietet

  • Grundriss
    • Entree
    • Wohnküche
    • Bad
    • WC
    • Schlafzimmer
    • Kinderzimmer
    • Abstellraum im Keller
    • Balkon
    • Gesamt 94 m2
1ogrechts.png

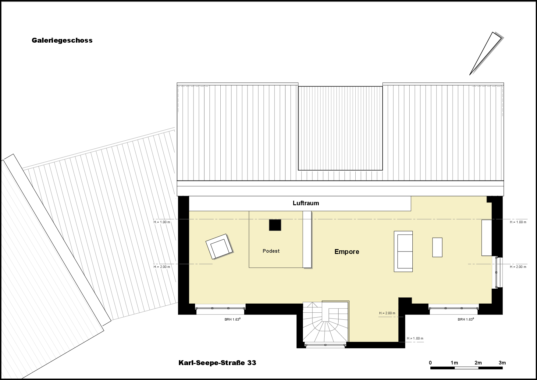
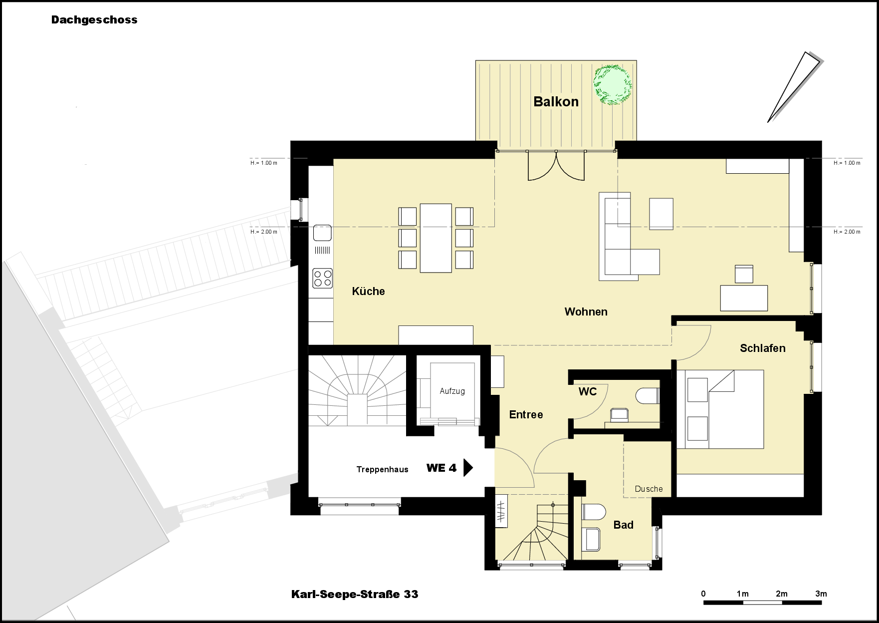
2. OG mit Empore

2. OG

  • Grundriss
    • Entree
    • Bad
    • WC
    • Küche/Wohnen
    • Schlafen
    • Empore
    • Balkon
    • Abstellraum im Keller
    • Gesamt 140 m2
2og.png

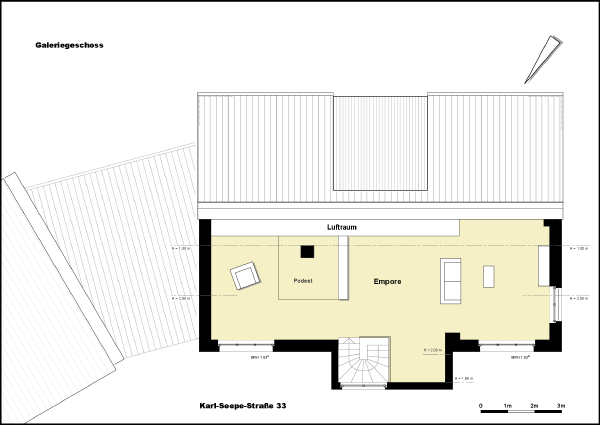
Empore

3og.png

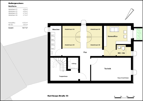
Keller mit Homeoffice-Raum

keller.png